Residential Pool with Helical Piles

$5

CADD files for an example wood pedestrian and golf cart bridge. Support beams run longitudinally and are supported by helical ...

Warehouse with MEZZANINE floor Shop Drawings

$15

Reusable complete Warehouse floor Shop Drawings ...

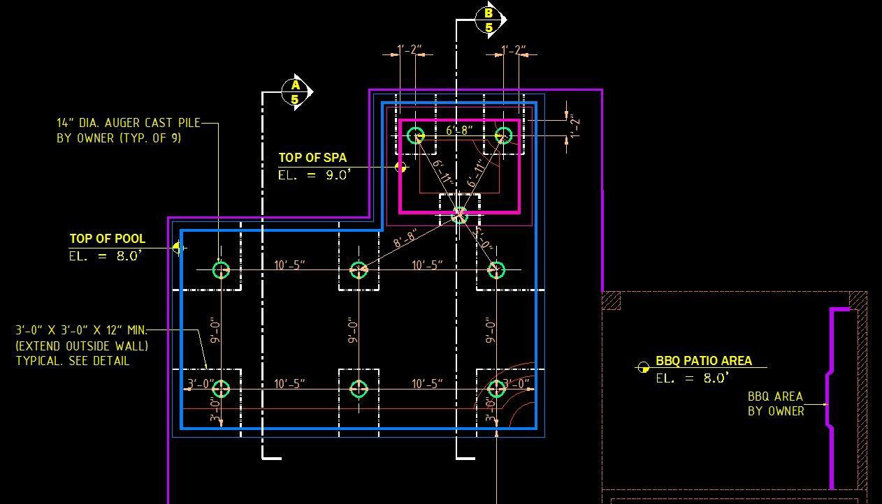
Residential piling pool drawings

$2

Reusable complete residential piling pool drawings in dwg format. Per ACI Code ...

Wood truss drawings

$9

Here is a complete project of wood roofs(complicated roofs) with wood trusses, it´s a complete project with all connections detailed ...

Wahig Bridge Complete Set of Drawings

$1

Wahig Bridge Complete Set of Drawings ...

Prestress Concrete Bridge Drawing

$1.5

Here are the drawings of a full bridge system of two equal span of 35m. These Drawings Consist: General ...

Factory Steel Project

$18

Best complete Factory Steel Project drawings in dwg format. Per ACI 2016 Code ...

Floor Concrete Building

$25

This is a set of drawing of 2 - floor concrete building in spanish made by my company. ...

Spiral Stair drawing file

$1.75

Spiral Stair autocad2008 drawing file ...

House structural plans and details

$22

In here are the plans and details for a house(medium house) of one family, software used cype. ...

Standard Plans for Southern Pine Bridges

$26

Standard Plans for Southern Pine Bridges The development of standardized timber bridge plans and specifications is a key element in ...

Architectural details and non structural Precast Concrete Drawing

$1.25

Very good precast concrete Drawings with pdf format ...

SketchUp Drawings

$19

Very good SketchUp Drawings Drawings with pdf format for new strart. ...

Space Truss Details

$11

Space Truss Details autocad2008 drawing file ...

Flat Architectural drawing

$20

Very simple project with unusual structural solution (not orthogonal structural frame) Not complete architectural project (no sections, no details) and ...